产品简介:
GRH/GRS柔性伸缩器适用于两边均与法兰连接,安装时调整产品两端与法兰的连接长度,对角依次均匀拧紧压盖螺栓,再调整好限位螺母,这样就能让管道在伸缩量范围内可以自由伸缩,锁定伸缩量,确保管道的安全运行。柔性伸缩器主要由松套伸缩接头和限位短管等构件组成。它能防止管道因超量位移导致补偿接头的泄露或损坏,主要用于在允许位移范围内吸收轴向位移和承受压力推力的管道松套连接。
主要特点:
优点:伸缩量大、安装方便快捷。
特点:适用于两端法兰连接的管道上面。
适用介质:适用于输送海水、淡水、冷热水、饮用水、生活污水、原油、燃油、润滑油、成品油、空气、煤气、温度不高于250度的蒸汽和颗粒粉状等介质。
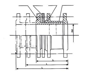
产品结构图:

产品外形连接尺寸:
|
公称尺寸 |
管子外径DW |
外形尺寸 |
伸缩量δ |
法兰连接尺寸 |
||||||||
|
DW |
D0 |
L |
L2 |
L1 |
0.6Mpa |
1.OMpa |
||||||
|
D |
K |
n-do |
D |
K |
n-do |
|||||||
|
65 |
76 |
76 |
340 |
340 |
105 |
±25 |
160 |
130 |
4-¢14 |
185 |
145 |
4-¢18 |
|
80 |
89 |
89 |
190 |
150 |
4-¢18 |
200 |
160 |
8-¢18 |
||||
|
100 |
108 |
108 |
21O |
170 |
220 |
180 |
||||||
|
114 |
114 |
|||||||||||
|
125 |
133 |
133 |
240 |
200 |
8-¢18 |
250 |
210 |
|||||
|
140 |
140 |
|||||||||||
|
150 |
159 |
159 |
265 |
255 |
285 |
240 |
8-¢23 |
|||||
|
168 |
168 |
|||||||||||
|
200 |
219 |
219 |
320 |
280 |
340 |
295 |
||||||
|
250 |
273 |
273 |
375 |
335 |
12-¢18 |
395 |
350 |
12-¢23 |
||||
|
300 |
325 |
325 |
350 |
370 |
130 |
±32.5 |
440 |
395 |
12-¢23 |
445 |
400 |
16-¢22 |
|
350 |
377 |
377 |
490 |
445 |
505 |
460 |
16-¢26 |
|||||
|
400 |
426 |
426 |
540 |
495 |
16-¢23 |
565 |
515 |
20-¢26 |
||||
|
450 |
480 |
480 |
595 |
550 |
615 |
565 |
||||||
|
500 |
530 |
530 |
645 |
600 |
20-¢23 |
670 |
620 |
20-¢30 |
||||
|
600 |
630 |
630 |
755 |
705 |
20-¢27 |
780 |
725 |
24-¢30 |
||||
|
700 |
720 |
720 |
860 |
810 |
24-¢27 |
895 |
840 |
24-¢33 |
||||
|
800 |
820 |
820 |
590 |
600 |
220 |
±65 |
975 |
920 |
24-¢30 |
1015 |
950 |
28-¢33 |
|
900 |
920 |
920 |
1075 |
1020 |
1115 |
1015 |
28-¢36 |
|||||
|
1000 |
1020 |
1020 |
1175 |
1120 |
28-¢30 |
1230 |
1160 |
28-¢36 |
||||
|
1200 |
1220 |
1220 |
1405 |
1340 |
32-¢33 |
1455 |
1380 |
32-¢40 |
||||
|
1400 |
1420 |
1424 |
640 |
1630 |
1560 |
36-¢36 |
1675 |
1590 |
36-¢42 |
|||
|
1600 |
1620 |
1624 |
1830 |
1760 |
40-¢36 |
1915 |
1820 |
40-¢48 |
||||
|
1800 |
1820 |
1824 |
2045 |
1970 |
44-¢39 |
2115 |
2020 |
44-¢48 |
||||
|
2000 |
2020 |
2026 |
2265 |
2180 |
48-¢42 |
2325 |
2230 |
48-¢48 |
||||
|
2200 |
2220 |
2226 |
2475 |
2390 |
52-¢42 |
2550 |
2440 |
52-¢56 |
||||
|
2400 |
2420 |
2426 |
2685 |
2600 |
56-¢42 |
2760 |
2650 |
56-¢56 |
||||
|
2600 |
2620 |
2626 |
600 |
710 |
240 |
±75 |
2905 |
2810 |
60-¢48 |
2960 |
2850 |
60-¢56 |
|
2800 |
2820 |
2826 |
3115 |
3020 |
64-¢48 |
3180 |
3070 |
64-¢56 |
||||
|
3000 |
3020 |
3026 |
3315 |
3220 |
68-¢48 |
3405 |
3290 |
68-¢60 |
||||
|
3200 |
3220 |
3230 |
3525 |
3430 |
72-¢48 |
- |
- |
- |
||||
|
3400 |
3420 |
3432 |
3735 |
3640 |
76-¢48 |
- |
- |
- |
||||
|
3600 |
3620 |
3632 |
3970 |
3860 |
80-¢56 |
- |
- |
- |
||||











